Veoma luksuzan i kvalitetan stambeno-poslovni kompleks Soul 64, na izuzetnoj lokaciji - u blizini luksuznih naselja West 65, A blok, kao i poslovnog centra grada Airport Citxy-ja. U izdradnji su korišćeni prirodni materijali - kamen, terakota, kao i oplemenjeni malter, cementne ploče, fasadna opeka. Naselje se spolja biti oivičeno lamelama, dok će se u unutrašnjosti kompleksa nalaziti manje pojedinačne zgrade. Prostor unutar kompleksa biće zona bez saobraćaja, uređena velikim parkom i puno zelenila. Pružaće mogućnost života po najvišim standardima - sopstveno održavanje, bazen, fitnes centar.
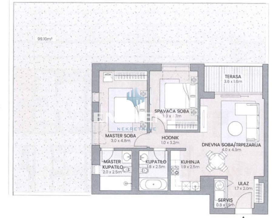
U ponudi je komforan, trosoban stan, ukupne površine 73.46m2, od čega je površina terase 5.82m2. Najveća prednost ovog stana svakako je terasa - bašta površine 99.1m2. Stan čine dnevni boravak, trpezarija, kuhinja, dve spavaće sobe, od kojih je jedna soba master i poseduje sopstveno kupatilo, dodatno kupatilo i terasa. Uz stan se prodaje i garažno mesto, uz doplatu.
Agencijska provizija iznosi 2% dogovorene kupoprodajne cene
